أنظمة التسلق

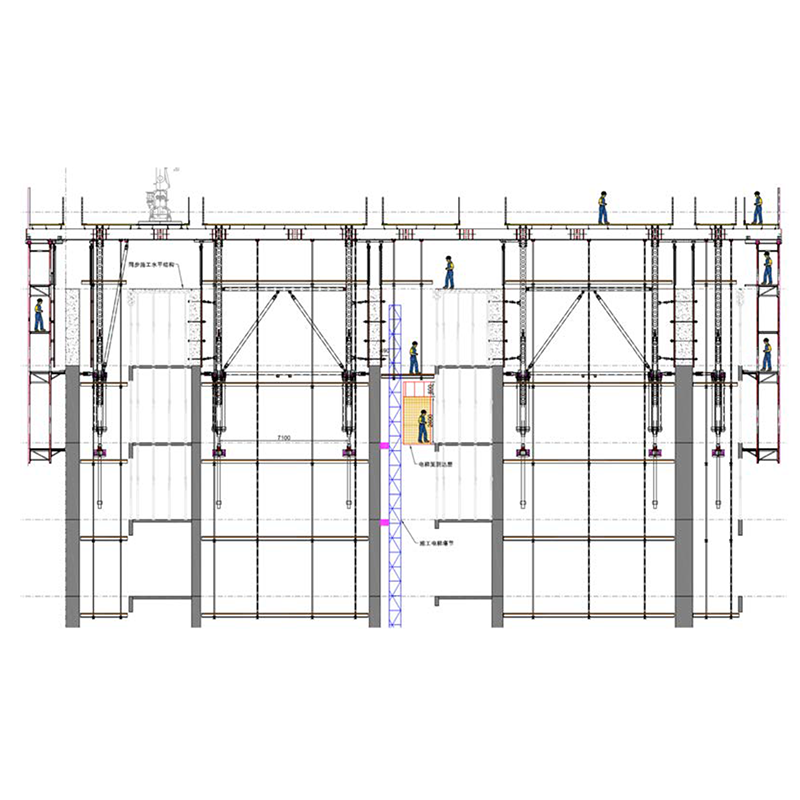
نظام قوالب الرفع المتكامل

نظام قوالب الرفع المتكامل

يُثبَّت نظام قوالب الرفع المتكامل على الهيكل الرأسي المصبوب في الموقع، ويستخدم أسطوانات هيدروليكية للرفع المتناوب. ووفقًا لهيكل الأنبوب الأساسي، يُمكن تركيب حوامل على السطح الخارجي أو دمجها مع قوالب التسلق. ويمكن بناء الهياكل الأفقية داخل الأنبوب الأساسي بالتزامن مع الجدران الأساسية. النظام قابل للتعديل لتلبية متطلبات البناء، سواءً لتغيرات سُمك الجدران أو للانتقال من وضع مستقيم إلى وضع مائل.

ينطبق على:
هياكل شاهقة الارتفاع مع بناء أنبوب أساسي متطور.

المزايا

  • مرتبط بالهيكل الرأسي للنواة ويمكنه الصعود ذاتيًا.
  • وظيفة دعم البناء في جميع الأحوال الجوية.
  • ميكنة عالية و بناء سريع و امان عالي.
  • تحسين كفاءة العمل وتقليل القوى العاملة.